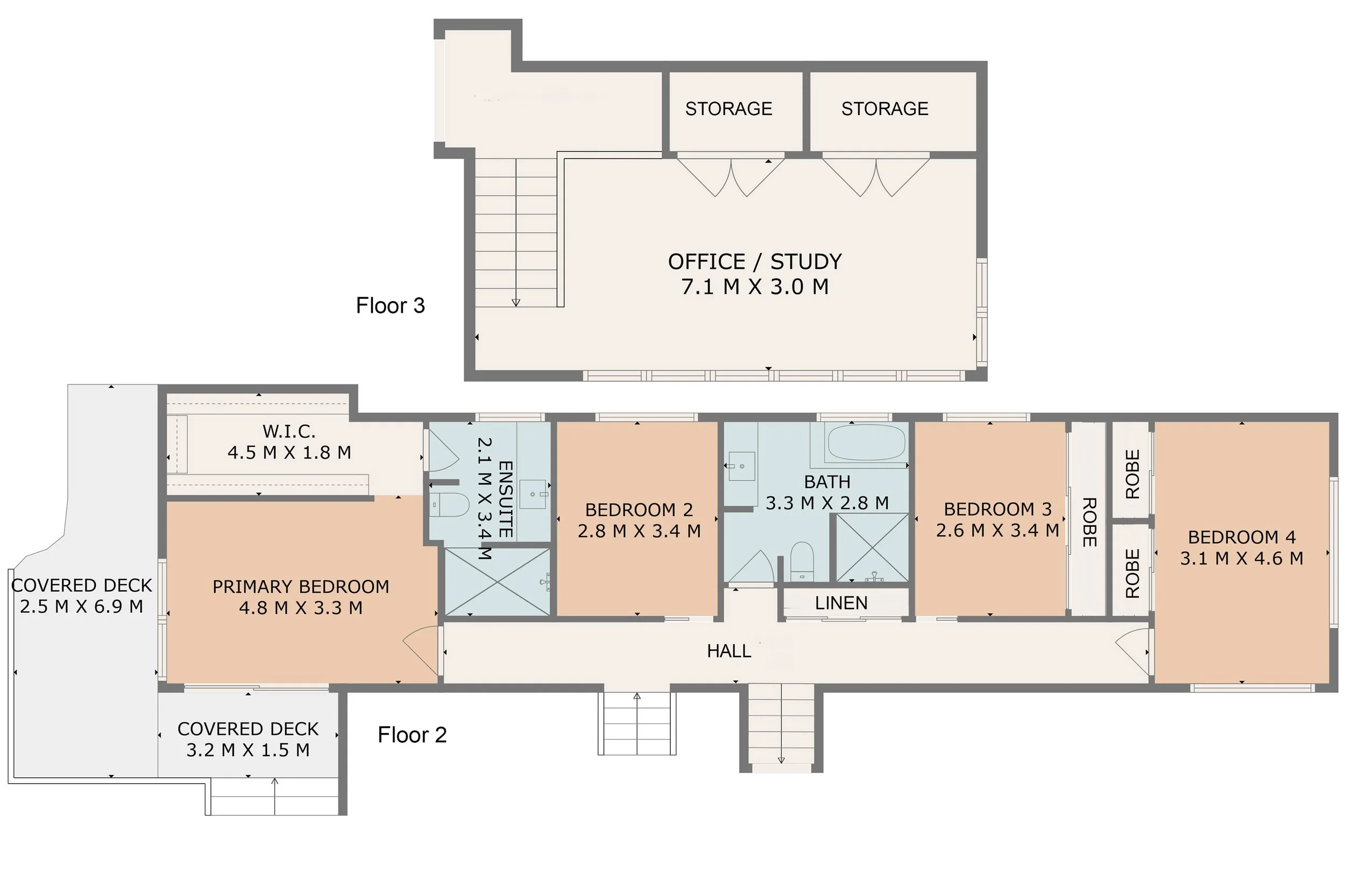
Floor Plans To See The Layout & Understand The Property.

Detailed 2D, 3D and interactive plans that make the structure of a property instantly clear. Buyers can grasp proportions, room relationships and overall design without second guessing the space.

When Layout
Leads The Decision.

Floor plans help buyers make sense of a home within seconds. Professionally prepared 2D and 3D layouts clearly communicate proportions, room placement, and how each space connects.

In a digital-first market, understanding the structure of a property is just as important as seeing the photos. A well-crafted plan answers practical questions early, reduces uncertainty, and allows buyers to picture how they would live in the space.

Our plans are precisely measured, thoughtfully designed, and tailored to suit the property and your brand — clean, modern, and easy to interpret at a glance.

NEW | Interactive Floor Plans

Explore The Space Before You See It In Person.

Go beyond static layouts with immersive, clickable floor plans that allow buyers to navigate the home digitally. Seamlessly linked to photography, each space connects visually, creating a clearer understanding of flow, proportion, and design.

Built to enhance the online viewing experience, interactive plans help buyers engage longer, explore deeper, and form a stronger connection before stepping through the door.

EXAMPLE | Interactive Floor Plan Tour